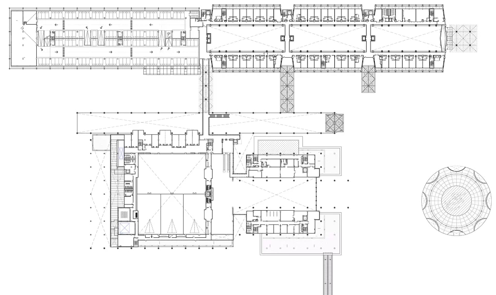
Mövenpick Hotel & Convention Centre (MHCC) KLIA Sepang is a green landmark development that forms an urban oasis within the palm plantation estates that dominate the area. For one month every year, the 5-star hotel and convention centre owned by Lembaga Tabung Haji operates as the Malaysia Hajj Operation Centre that manages and prepares pilgrims prior to their departure for Makkah. Featuring a distinctive modern interpretation of Islamic architecture, it reflects Malaysia’s rich cultural heritage and the hotel’s status as a Shariah-compliant development.
Mövenpick Hotel &
Convention Centre KLIA
Pilgrims’
Paradise
Guests and pilgrims are greeted by an undulating landscape of berms and rows of date palm trees. Positioned between the convention centre and the hotel is a linear courtyard with a beautiful reflecting pool running through its centre towards the white marble ‘Ahad Pillar’. The space is designed to be a paradise that engages all senses at once; the dancing light and shadow peeking through the kufic screens, the vegetal fragrance from the herb garden, the soothing sound of water and the balmy feel of a tropical breeze.
Alluding to the concept of ihram, the connectivity between the spaces are imbued with the qualities of purity and the journey beyond self and materiality.
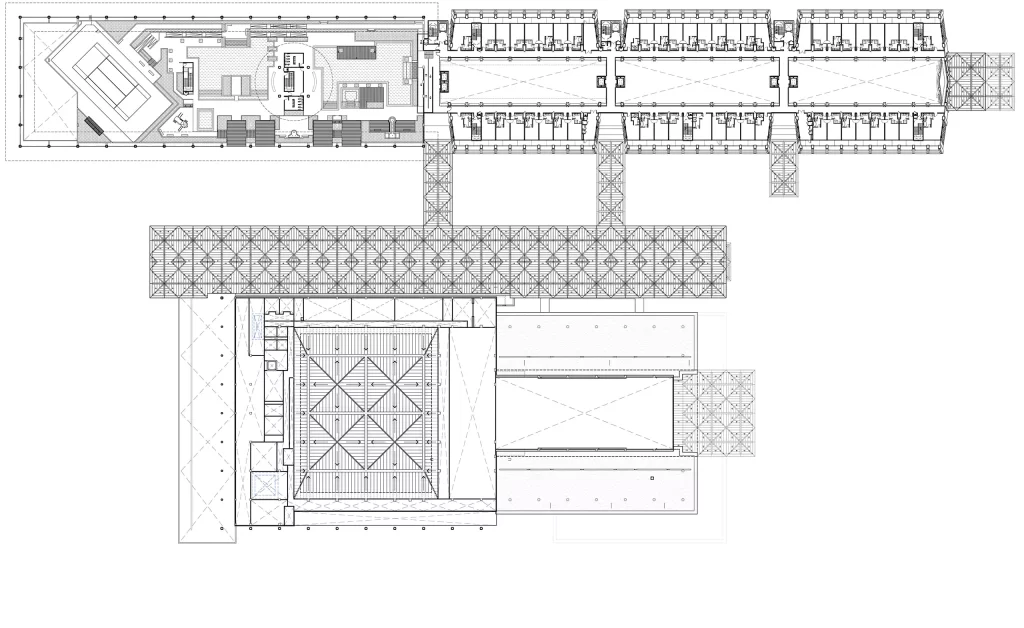
The three hotel blocks form are derived from the distinguishable shape of ‘Lancet Arch’ widely used in Islamic architecture with the intention of creating a gateway that greets the people. The exterior arch form is carried through into the internal spaces. Inversely, this design also allows people the opportunity to appreciate the external, bright and tropical ambience from inside the hotel.
The nine-storey arched atrium culminates with a linear rooftop skylight which filters the right amount of natural daylight to illuminate the internal courtyards of the three blocks.
Natural light illuminates the corridors providing a transcendent feel to the pathways.
The centrepiece of the atrium in block B are the spa pods. These petal-shaped woven enclosures are individual massage pods for foot reflexology, an extension of the Spa Outlet designed to offer full spa services with separated facilities for men and women. Meanwhile, in between the palm trees of the atrium in Block C is Redup, a comfy lounge area. The corridors from 1st to 4th floor opens to the thematic internal atriums while corridors from the 5th to 7th floor are lined with full-height glass wall for security and fire safety measures.
The executive lounge, fitness centre and spa treatment rooms are on the 8th floor, where guests can have a 180-degree view of the surrounding. Facilities such as designated men and women swimming pools, kid’s pool, jacuzzi and a tennis court are also located here.
Guests are able to access the convention centre directly from the hotel bridge at the 1st floor, providing a seamless experience for conference delegates and hajj pilgrims. The conference centre serves as the departure hall for Malaysia’s hajj operations and as a major host venue for international exhibitions and conferences.
Awards
2018 Green Building Index Rating — Silver
2020 PAM Awards: Hospital Category — Silver
2020 Muslim-Friendly Accommodation Recognition (MFAR) — Platinum
2020 Malaysia Green Building Council (MGBC) — Best New Green Commercial Building




















